Mẫu Thiết Kế Nhà Phố Liền Kề 2 Tầng Hiện Đại Có Sân Thượng Thoáng Mát
Tổng Quan Thiết Kế
Hình ảnh thể hiện một dãy nhà phố liền kề 2 tầng mang phong cách hiện đại, được quy hoạch đồng bộ, tạo nên tổng thể kiến trúc hài hòa và sang trọng. Đây là lựa chọn lý tưởng cho các khu dân cư mới, khu đô thị vệ tinh hoặc dự án nhà ở thương mại.
Thiết Kế Hiện Đại, Tối Giản Và Đối Xứng
Các căn nhà được thiết kế theo lối đối xứng với những đường nét khỏe khoắn, vuông vức, thể hiện rõ phong cách kiến trúc hiện đại. Mặt tiền sử dụng hệ lan can kính và cửa kính lớn, giúp tận dụng tối đa ánh sáng tự nhiên và mang lại cảm giác không gian rộng mở.
Mỗi căn đều có khoảng sân trước riêng biệt, kết hợp cùng hàng rào sắt thẩm mỹ, tạo sự riêng tư và an toàn nhưng vẫn thông thoáng.

Không Gian Sống Xanh Với Sân Thượng Rộng Rãi
Sân thượng là điểm nhấn đặc biệt trong thiết kế này. Được trang bị giàn lam che nắng và bồn cây xanh, không gian trên cao có thể dùng để trồng cây, làm vườn nhỏ, bố trí bàn trà hoặc khu vực thư giãn ngoài trời.
Việc thiết kế nhà phố có sân thượng xanh ngày càng phổ biến do đáp ứng nhu cầu sống gần gũi với thiên nhiên trong đô thị chật chội.
\
Công Năng Phù Hợp Với Gia Đình Trẻ Và Đô Thị Mới
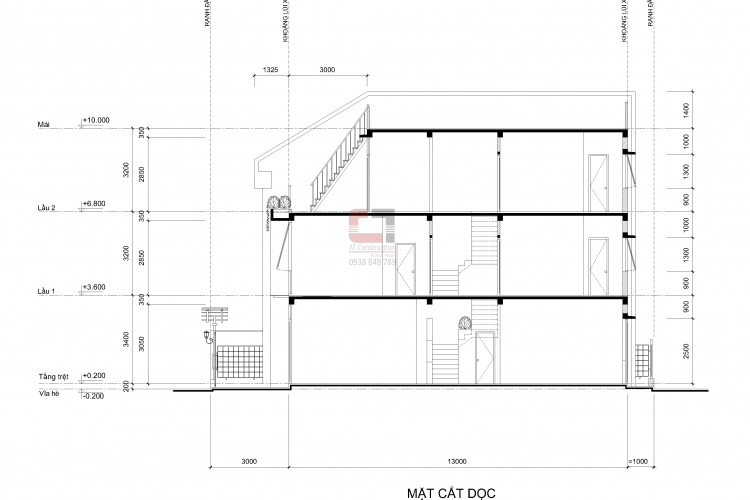
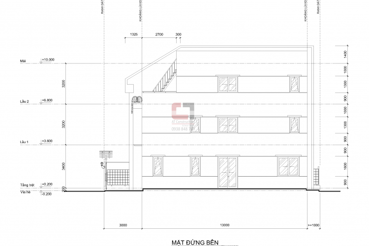
Mỗi căn nhà liền kề 2 tầng có thể bố trí công năng như sau:
-
Tầng trệt: Phòng khách, bếp ăn, sân sau và sân trước để xe.
-
Tầng lầu: 2–3 phòng ngủ, nhà vệ sinh.
-
Sân thượng: Không gian sinh hoạt mở hoặc phòng thờ, sân phơi.
Thiết kế này rất thích hợp với các gia đình trẻ cần không gian sống riêng tư, tiện nghi và có tính kết nối cộng đồng cao.
Lý Do Nên Chọn Mẫu Nhà Phố Liền Kề 2 Tầng Hiện Đại
-
Kiến trúc hiện đại, đồng bộ và sang trọng.
-
Tối ưu diện tích, dễ dàng xây dựng theo lô.
-
Phù hợp quy hoạch khu dân cư, khu đô thị.
-
Thiết kế thân thiện môi trường, nhiều không gian xanh.






Mẫu nhà phố liền kề 2 tầng có sân thượng hiện đại là sự lựa chọn tối ưu cho các dự án phát triển khu dân cư, phù hợp với nhu cầu sinh sống của các gia đình trẻ, mang lại không gian sống thoải mái, tiện nghi và giàu tính thẩm mỹ.
